Nichtwohngebäude

Hebewerk Laaerberg

Sanierungsjahr: 2019-2020
Ort: 1100 Wien, Gudrunstraße 33

PROJEKTBESCHREIBUNG

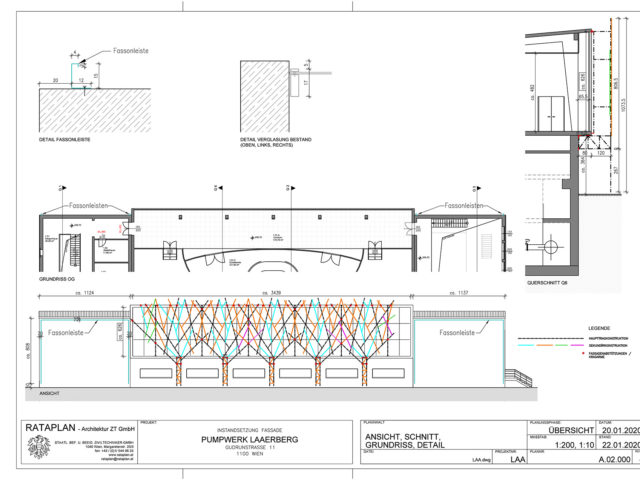
Das Wasserhebewerk von Wiener Wasser befindet sich mit dem Wasserbehälter von 1874, der zu den ersten Wasserspeicher für die tiefergelegenen Stadtteile zählte, am Fuße des Laaerberges. In den 1960er Jahren errichtet, stand dem Hebewerk nun eine Sanierung der Glasfassade des mittleren Fassadenteiles bevor. Im Zuge des Fenstertauschs entschied sich Wiener Wasser für eine angemessene Fassadenbegrünung, wo sonst keine Bäume wachsen können. Die notwendige Sanierung bot die Gelegenheit, Abstützungen für die Windlasten zum Gebäude hin herzustellen. Die luftige Glaskonstruktion des eleganten Pumpwerks steht auf einem soliden, mit Klinker verkleideten Sockel und wird seitlich von schlichten Putzfassaden begleitet. Die verglaste Gebäudemitte erhielt Rankgerüste in Form von Bäumen, die diese gleichzeitig betonen und beschatten. An den seitlichen Putzfassaden gedeiht Veitschi, der sich mit seinen Saugnäpfen selbst festhalten kann. Das Ergebnis bringt gewünschte Kühlung und Schatten für den dahinterliegenden Arbeitsbereich und einen einzigartigen grünen Blickfang im vielbefahrenen Straßenraum.
Die recht kurz bemessene Zeit für das Bauvorhaben bewirkte eine fast zeitgleiche Ausführungs- und Bauzeit. Damit die Rankpflanzen vor dem Winter gut ihre Wurzeln austreiben konnten, war es notwendig die Bepflanzung rechtzeitig vor dem Herbst 2020 zu starten. So lag das Hauptaugenmerk im Monat Juni auf der Sanierung der Glasfassade (Abbruch und Herstellung) und auf der Errichtung des Stahlgerüsts in Form von 5 ausladenden Bäumen, deren Äste sich kreuzen und berühren. An den Stämmen aus verzinktem Stahl winden sich nun bodengebundene Pflanzen, wie Trompetenblume und Blauregen ohne aufwendige Be- und Entwässerung empor. An den verputzten Flächen rechts und links der Glasfassade wächst Veitschi, der sich eigenständig mit Saugnäpfen an der Fassade festhalten kann und innerhalb kurzer Zeit die Flächen bedeckt. Der große Raum hinter der Glasfassade, in dem sich auch die Büroräumlichkeiten befinden, wird vor Überhitzung geschützt, die Reflexion der Gläser zum Straßenraum hin verringert und gleichzeitig schafft die Begrünung 398 m² Grünfläche.

Projekt

Nichtwohngebäude

Ort: 1100 Wien, Gudrunstraße 33
Baujahr: 1960er Jahre
Sanierungsjahr: 2019-2020
Maßnahmen: Fenstertausch Glasfassade, Fassadenbegrünung mit Stahlrankgerüst
Funktion: Hebewerk

Projektbeteiligte:

Green4Cities GmbH : Landschaftsplanung
Raunicher+Partner Bauingenieure ZT-GmbH : Statik
kpp consulting gmbh : Bau KG

Eckdaten

Fenstertausch und Fassadensanierung: 215 m²
Fassadenbegrünung: 398 m²
Auszeichnungen / Zertifizierungen: GEBAUT 2020 / MA 19
© RATAPLAN
Generic selectors
Exact matches only
Search in title
Search in content
Post Type Selectors
Kontaktieren Sie uns!