Nichtwohngebäude

VHS Ottakring

Sanierungsjahr: 2021 – 2024
Ort: 1160 Wien, Ludo-Hartmann-Platz 7

PROJEKTBESCHREIBUNG

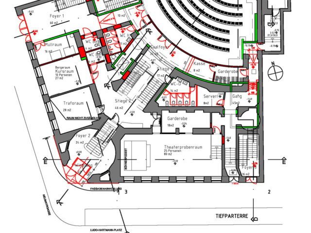
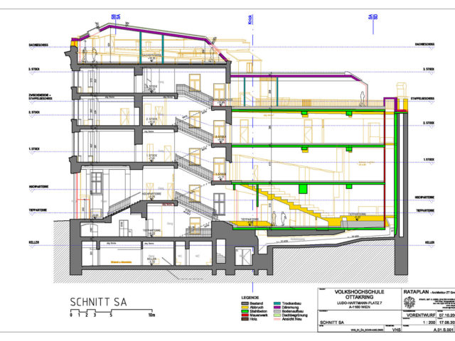
Die VHS Ottakring ermöglicht seit 120 Jahren als erste Abend-Volkshochschule Europas Bildung für die Wiener Bevölkerung. So sind Erhaltung und Modernisierung des Gebäudes mit denkmalgeschützter Bausubstanz nicht nur von höchstem architektonischen Interesse, sondern von historisch sozialpolitischen Inhalten geprägt. Im Fokus der Instandsetzung standen daher die Menschen im Raum: Es sollte ein Ort für Bildung geschaffen werden, der über eine hohe Aufenthaltsqualität verfügt und bei aller Funktionalität, Ausformung und Neugestaltung nicht an Authentizität verliert. Während denkmalgeschützte Gebäudeteile (Fassade, der historische Haupteingang und das zentrale Stiegenhaus) bei der Erneuerung weitestgehend in ihrer Ursprünglichkeit erhalten blieben, wurde die Raumstruktur im Inneren erheblich verändert und ergänzt. Eine besondere Herausforderung stellte das Grundstück dar, welches (flankiert von einer Blockrandbebauung) in den Hof hinein spitz zuläuft und zur Gänze bebaut ist. So führten höchst komplexe Umbaumaßnahmen zu einer zukünftigen Nutzbarkeit mit mehr Nutzfläche. Dementsprechend wurden Brandabschnitte erneuert und der Gebäudestruktur angepasst sowie eine barrierefreie Erschließung ermöglicht. Die Aufstockung des DGs schaffte weiteren Platz für Kursräume. Kurs- und Verwaltungsbereiche sind klar voneinander getrennt. Raumeinheiten können teilweise miteinander verbunden werden, um flexibel auf die jeweiligen Ansprüche reagieren zu können. So auch das Herzstück, die „Wolke 16“: Auf der ehemals brach liegenden Dachfläche im Hoftrakt sind ein Multifunktionsraum und ein Sozialraum miteinander kombinierbar und bieten einen direkten Zugang auf die umlaufende Terrassenfläche, die zum Verweilen einlädt. Mittels eines begrünten Rankgesrüsts wird diese beschattet; weitere Flachdächer sind extensiv begrünt. Das durch frühere Umbauten entfernte, an der Hausecke thronende Relief einer Eule als Symbol der Weisheit, befindet sich durch eine Neuinterpretation als Metallkonstruktion wieder an ihrer ursprünglichen Stelle.
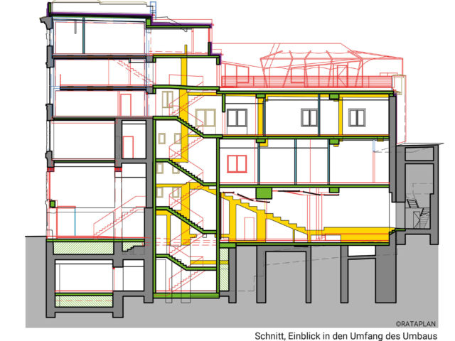
Das „Volksheim“, entworfen von Franz Ritter von Neumann und 1905 erbaut, beinhaltete einen großen Saal für 400 Personen, mehrere kleine Säle, eine Leihbibliothek, eine Volkslesehalle, viele Lernräume und eine Kantine. Der Eingang, sowie die Erschließung des historischen Gebäudes war nicht barrierefrei und erfolgte über ein repräsentatives Portal, das im Laufe der Jahre mehrfach verändert wurde. Über die Jahrzehnte hinweg erfuhr die Fassade wiederholt an den jeweiligen Zeitgeist gebundene Anpassungen. So wurde bei der Sanierung darauf geachtet, das historische Erscheinungsbild zu bewahren; lediglich Verschattungsscreens an den straßenseitigen Fenstern wurden hinzugefügt. Das Projekt erforderte eine gründliche Planung und einen ständigen Austausch mit dem Bundesdenkmalamt, dem Bauherrn und den Nutzer*innen. Ziel war es, den historischen Charme des Altbaus zu bewahren und gleichzeitig neue, zeitgemäße Elemente einzuführen. Besonders wichtig war der intensive Dialog mit den Nutzer*Innen, um das Gebäude entsprechend ihren Bedürfnissen zu verbessern. Die komplexe Renovierung war eine große Herausforderung, da das Gebäude teilweise entkernt und wieder neu aufgebaut wurde. Alte sowie neue Gebäudeteile (Dachaufbau, „Wolke 16“, eingezogene Zwischendecken, unterschiedliche Fußbodenniveaus etc.) mussten auf den neuesten Stand der Technik gebracht und allumfassend zugänglich gemacht werden. Das Gebäude hatte über Monate kein Dach und keine Böden; tragende Mauern wurden für die Umbauarbeiten und zur erhöhten Erdbebensicherheit mit Stahlbeton verstärkt. Die bestehende Gebäudestruktur wies große Mängel bei den Fluchtwegen und dem Brandschutz auf. Ein erheblicher Eingriff in den Bestand ermöglichte es, diese Mängel zu beheben und die Volkshochschule barrierefrei zu ertüchtigen. Es fehlte in vielen Bereichen eine Anbindung an das einzig zentrale Stiegenhaus, sodass Notausgänge gar nicht vorhanden waren. Unterschiedliche Fußbodenniveaus, oftmals durch wenige Stufen bestimmt, erschwerten die Planung des Aufzugs, der sämtliche Ebenen und Gebäudeteile miteinander verbinden sollte. Mit einem neuen Gang und zwei zusätzlichen Stiegenhäusern konnte der Zugang zum Aufzug und die Fluchtwegsituation verbessert werden. Für das neue Stiegenhaus 1, am Eingang Neumayrgasse gelegen, sah das Gestaltungskonzept einen zweiten dem Hauptportal gleichwertigen Eingang vor: mit viel Aufwand wurde das Gebäude Ziegel um Ziegel, Schritt für Schritt ausgehöhlt, um es Schicht für Schicht wieder aufzubauen. Das neue Stiegenhaus 3 dient als reines Fluchtstiegenhaus vom Dachgeschoß bis zum neu gestalteten Ausgangsportal am Ludo-Hartmann-Platz. Eine weitere wichtige Änderung war die Erweiterung des Dachgeschoßes, um mehr Nutzfläche für Kursräume zu schaffen. Dies wurde durch eine Ausnahmegenehmigung (§69) ermöglicht, um eine zeitgemäße Nutzung sicher zu stellen. Zusätzlich wurde auf einer alten Terrasse, die zuvor aus statischen Gründen nicht genutzt werden konnte, neue Nutzflächen geschaffen. Im maximal möglichen Raumumriss von 45° Grad ab der Traufkante und der höchstmöglichen Anbindung der Ausgänge erhielt die „Wolke 16“ ihre einzigartige Form. Als trennbarer Mehrzweck- und Veranstaltungsraum hat der Zubau mit dem Blick über die Stadt einen besonderen Charakter. Ein Rankgerüst an der Ostseite wird als Pergola bepflanzt, die Schatten spendet und die Terrasse zu einem angenehmen Aufenthaltsort macht. Das Gebäude wurde technisch auf den neuesten Stand gebracht. Die Wärmeversorgung erfolgt größtenteils über Radiatorenheizung, in einigen Bereichen wie dem Tiefparterre und dem Bewegungsraum wird Fußbodenheizung genutzt. Die denkmalgeschützte Fassade zur Straße ist nicht gedämmt, während die Hofseite gedämmt wurde. Klimaanlagen und Lüftungsgeräte sorgen für Kühlung und Luftzirkulation und sind auf dem Dach hin zur Neumayrgasse untergebracht. Das Dach und die Flachdächer über den Erschließungsgang und der Stiege 1 sind extensiv begrünt.

Projekt

Nichtwohngebäude

Ort: 1160 Wien, Ludo-Hartmann-Platz 7
Baujahr: 1905
Sanierungsjahr: 2021 – 2024
Maßnahmen: Sanierung, Umbau, Zubau, Begrünung, Brandschutz, bautechnische Ertüchtigung
Funktion: Bildungshaus, Volkshochschule

Projektbeteiligte:

IC Consulenten ZT GesmbH : Generalkonsulent
Draxler + Dallhammer ZT GmbH : Bau KG
Dipl. Ing. Wilhelm Sedlak GesmbH : GU – Bauausführung
Auctor GmbH : Brandschutz

Eckdaten

Nettonutzfläche nach d. Sanierung: 2.499 m²
Nettonutzfläche vorher : 2.361 m²
Energienachweis nach d. Sanierung EBB (sk) : 101 kWh/m²a mit BGF 4.850 m²
Energienachweis vorher EBB (sk): 233 kWh/m²a mit BGF 3.547 m²
Auszeichnungen / Zertifizierungen: Bravourleistung Silber Wiener Stadterneuerungspreis, 2. Platz
©RATAPLAN
©RATAPLAN
©RATAPLAN
©RATAPLAN
©RATAPLAN
Generic selectors
Exact matches only
Search in title
Search in content
Post Type Selectors
Kontaktieren Sie uns!